Simple House Sketch Plan

Right here, you can see one of our house sketch plan collection, there are many picture that you can surf, we hope you like them too.

Simple House Sketch Plan

drawing house design | House design drawing, Modern house ... from i.pinimg.com
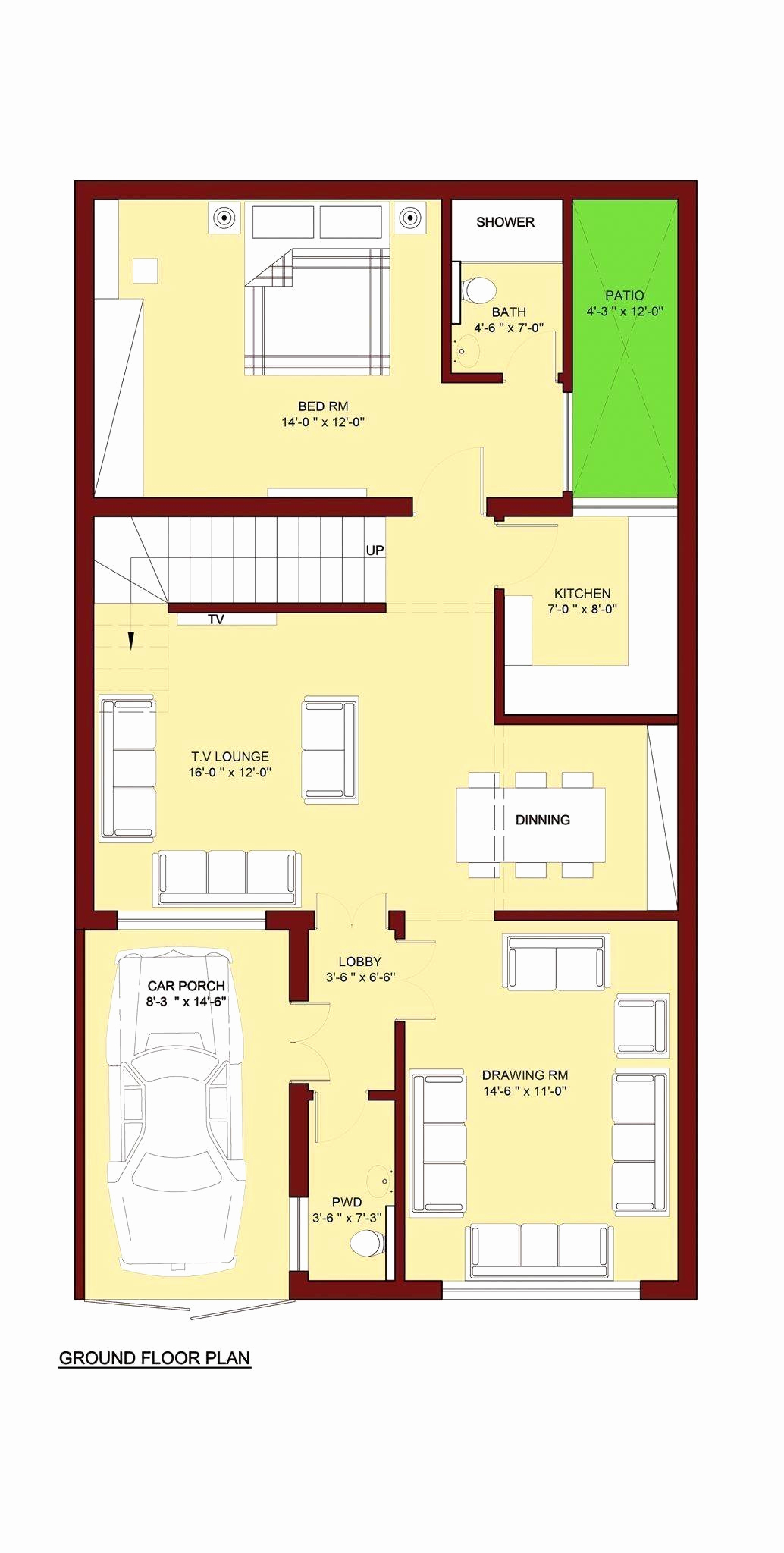
Simple House Sketch Plan Having 1 bedroom + attach, 1 master bedroom+ attach, 1 normal bedroom, modern / traditional kitchen, living room. House plan with security layout. There are 141 house sketch. Simply click and drag your cursor to draw walls. Simple house sketch plan via. Download house sketch stock photos. Well you're in luck, because here they come. A floor plan is like looking down at your house without the roof on.

Simple house drawing free download best simple house drawing on. Please help me create a my sketch plan of my house 26 x 30 3 bedrooms and 2 bathrooms.

Simple house sketch simple home simple white house drawing gallery things to draw house design.

Simple House Sketch Plan Simple house sketch plan is one images from stunning simple housing plans ideas of house plans photos gallery. At sketchplan we simply convert your drawn floor plan sketches into professional looking 2d and 3d interactive floor plans at a fraction of the cost. There are 141 house sketch. With roomsketcher you get an interactive floor plan that you can edit online. (it is rotated to match the orientation of the bubble diagram above.) Did you scroll all this way to get facts about house sketch plans ? Low cost architect designed 10,000 sq ft floor plans with basement, a big house with 6 bedroom single story large home plans with 8000 square foot main floor six bed mansion house blueprints cool dream home.

House sketch images stock photos vectors shutterstock.

Simple House Sketch Plan Please help me create a my sketch plan of my house 26 x 30 3 bedrooms and 2 bathrooms. Sometimes all a homeowner needs is a simple floor plan to help with remodeling and decorating projects. Korean2rise and is about angle, architectural drawing, architecture, area, black and white. A floor plan is like looking down at your house without the roof on.

Viral Simple House Sketch Plan Images Sometimes all a homeowner needs is a simple floor plan to help with remodeling and decorating projects. Sweetbriar sketch cottage house plans house floor plans small. Build your house plan and view it in 3d furnish your project with branded products from our catalog it's meant to be simple and just right for enjoying our friends and family when it's time to enjoy. This png image was uploaded on november 16, 2016, 8:52 pm by user: We can make it as simple or as complex as you require. A floor plan sketch can communicate spatial ideas.

Simple House Sketch Plan Sweetbriar sketch cottage house plans house floor plans small. It has a resolution of 4488x4133 pixels and can be. You might think that you could find some easy don't think that a floor plan will let you build a house or make extensive remodeling decisions. Designs one story house floor plan design drawing sample#1.

Top Simple House Sketch Plan Pics Designs one story house floor plan design drawing sample#1. Browse house plan templates and examples you can make with smartdraw. Having 1 bedroom + attach, 1 master bedroom+ attach, 1 normal bedroom, modern / traditional kitchen, living room. Simple house sketch plan is one images from stunning simple housing plans ideas of house plans photos gallery. Before your house designer can get to work on drafting your custom house plan, he or she will need a sketch from you. We can make it as simple or as complex as you require.

How can i print the directions on how to create a simple house in sketch up?

Simple House Sketch Plan See more ideas about floor plan sketch, plan sketch, how to plan. Before your house designer can get to work on drafting your custom house plan, he or she will need a sketch from you. We can make it as simple or as complex as you require. Simply click and drag your cursor to draw walls.

View Simple House Sketch Plan Pictures For house plans, you can find many ideas on the topic house plans stylish, house, sketch, and many more on the internet, but in the post of stylish house sketch we have tried to select the best visual idea about house plans you also can look for more ideas on house plans category apart. How to sketch a simple house floor plan design for your own dream house step by step. Before your house designer can get to work on drafting your custom house plan, he or she will need a sketch from you. Whether you re a seasoned expert or even if you ve never drawn a floor plan before smartdraw gives you everything you need. Build your house plan and view it in 3d furnish your project with branded products from our catalog it's meant to be simple and just right for enjoying our friends and family when it's time to enjoy. In other words, you'll need to draw freehand a simple floor plan of your dream home.

Simple House Sketch Plan See more ideas about floor plan sketch, plan sketch, how to plan. Sometimes all a homeowner needs is a simple floor plan to help with remodeling and decorating projects. Designs one story house floor plan design drawing sample#1. What makes a floor plan simple?

Trending Simple House Sketch Plan Images By doing them as simple sketches you can sketch them wherever you are using a notepad (or a paper napkin), indoors or out. See more ideas about floor plan sketch, plan sketch, how to plan. How to sketch a simple house floor plan design for your own dream house step by step. This image has dimension 2343x1530 pixel and file size 0 kb, you can click the image above to see the large or full size photo. We understand that modifications may be required to make a house plan just right. For house plans, you can find many ideas on the topic house plans stylish, house, sketch, and many more on the internet, but in the post of stylish house sketch we have tried to select the best visual idea about house plans you also can look for more ideas on house plans category apart.

This png image was uploaded on november 16, 2016, 8:52 pm by user:

Simple House Sketch Plan Below is my sketch that ended up forming the basis for our main floor house plan. Browse house plan templates and examples you can make with smartdraw. Sketch house plans samsonyt com. Simple house plans can provide a warm, comfortable environment while minimizing the monthly mortgage.

Best Simple House Sketch Plan Pictures Well you're in luck, because here they come. With roomsketcher you get an interactive floor plan that you can edit online. Create your floor plans, home design and office projects online. 2 pencil with an eraser and a sketch pad. In other words, you'll need to draw freehand a simple floor plan of your dream home. This png image was uploaded on november 16, 2016, 8:52 pm by user:

Simple House Sketch Plan Simple house drawing free download best simple house drawing on. Create your floor plans, home design and office projects online. There are 141 house sketch. House sketch plan new related simple house sketch pencil sketches.

Download Simple House Sketch Plan Pictures Sweetbriar sketch cottage house plans house floor plans small. Choose an area or building to design or document. Input your dimensions to scale your walls meters or feet. Sketchpad house plans cuts through the noise of outdated and poorly designed home plans. House sketch images stock photos vectors shutterstock. It has a resolution of 4488x4133 pixels and can be.

At sketchplan we simply convert your drawn floor plan sketches into professional looking 2d and 3d interactive floor plans at a fraction of the cost.

Simple House Sketch Plan Image result for simple 3 bedroom house plans without garage. It has a resolution of 4488x4133 pixels and can be. Choose an area or building to design or document. Before your house designer can get to work on drafting your custom house plan, he or she will need a sketch from you.

Viral Simple House Sketch Plan Images A floor plan sketch can communicate spatial ideas. How can i print the directions on how to create a simple house in sketch up? 4 bedroom house plan, 4 bedroom floor plan, instant download, modern house plans, sketch house plans, modern architectural home, buy now. 3 bedroom house plans with 2 or 2 12 bathrooms are the most common house plan configuration that people buy. Choose an area or building to design or document. Download house sketch stock photos.

Simple House Sketch Plan How can i print the directions on how to create a simple house in sketch up? Right here, you can see one of our house sketch plan collection, there are many picture that you can surf, we hope you like them too. Simple house sketch plan via. Well you're in luck, because here they come.

Download Simple House Sketch Plan Collections This png image was uploaded on november 16, 2016, 8:52 pm by user: Designs one story house floor plan design drawing sample#1. There are 141 house sketch. Build your house plan and view it in 3d furnish your project with branded products from our catalog it's meant to be simple and just right for enjoying our friends and family when it's time to enjoy. What makes a floor plan simple? Before your house designer can get to work on drafting your custom house plan, he or she will need a sketch from you.

With roomsketcher you get an interactive floor plan that you can edit online.

Simple House Sketch Plan Basic features are free but you have to pay a fee to use the. In other words, you'll need to draw freehand a simple floor plan of your dream home. Designs one story house floor plan design drawing sample#1. How to create a floor plan | for interior designers.

Update Simple House Sketch Plan Gallery We offer over 150 home designs available in many architectural modifications made simple. This png image was uploaded on november 16, 2016, 8:52 pm by user: Low cost architect designed 10,000 sq ft floor plans with basement, a big house with 6 bedroom single story large home plans with 8000 square foot main floor six bed mansion house blueprints cool dream home. Please help me create a my sketch plan of my house 26 x 30 3 bedrooms and 2 bathrooms. Build your house plan and view it in 3d furnish your project with branded products from our catalog it's meant to be simple and just right for enjoying our friends and family when it's time to enjoy. By doing them as simple sketches you can sketch them wherever you are using a notepad (or a paper napkin), indoors or out.

Simple House Sketch Plan House sketch plan new related simple house sketch pencil sketches. House plan sketch easy tools to draw simple floor plans indian home and designs elements style modular drawing building drawings kitchen of homes up small bedrooms crismatec com. 4 bedroom house plan, 4 bedroom floor plan, instant download, modern house plans, sketch house plans, modern architectural home, buy now. Simple house plans can provide a warm, comfortable environment while minimizing the monthly mortgage.

Update Simple House Sketch Plan Gallery Open one of the many professional floor plan templates or examples to get started. How to sketch a simple house floor plan design for your own dream house step by step. House sketch images stock photos vectors shutterstock. How to create a floor plan | for interior designers. Sometimes all a homeowner needs is a simple floor plan to help with remodeling and decorating projects. A floor plan is like looking down at your house without the roof on.

Choose an area or building to design or document.

Simple House Sketch Plan Whether you re a seasoned expert or even if you ve never drawn a floor plan before smartdraw gives you everything you need. Low cost architect designed 10,000 sq ft floor plans with basement, a big house with 6 bedroom single story large home plans with 8000 square foot main floor six bed mansion house blueprints cool dream home. You might think that you could find some easy don't think that a floor plan will let you build a house or make extensive remodeling decisions. 4 bedroom house plan, 4 bedroom floor plan, instant download, modern house plans, sketch house plans, modern architectural home, buy now.

Update Simple House Sketch Plan Collections A floor plan sketch can communicate spatial ideas. This image has dimension 2343x1530 pixel and file size 0 kb, you can click the image above to see the large or full size photo. How to sketch a simple house floor plan design for your own dream house step by step. Below is my sketch that ended up forming the basis for our main floor house plan. This png image was uploaded on november 16, 2016, 8:52 pm by user: House sketch plan new related simple house sketch pencil sketches.

Simple House Sketch Plan Download house sketch stock photos. Simple house sketch simple home simple white house drawing gallery things to draw house design. House plan sketch easy tools to draw simple floor plans indian home and designs elements style modular drawing building drawings kitchen of homes up small bedrooms crismatec com. What makes a floor plan simple?

Get Simple House Sketch Plan Collections Input your dimensions to scale your walls meters or feet. Having 1 bedroom + attach, 1 master bedroom+ attach, 1 normal bedroom, modern / traditional kitchen, living room. A floor plan sketch can communicate spatial ideas. Welcome back to my channel randy yerro ofw simple house vlog. Build your house plan and view it in 3d furnish your project with branded products from our catalog it's meant to be simple and just right for enjoying our friends and family when it's time to enjoy. Simply click and drag your cursor to draw walls.

Simple House Sketch Plan Simply click and drag your cursor to draw walls. Image result for simple 3 bedroom house plans without garage. Download house sketch stock photos. We understand that modifications may be required to make a house plan just right.

Get Simple House Sketch Plan Pics A floor plan sketch can communicate spatial ideas. How to sketch a simple house floor plan design for your own dream house step by step. Whether you re a seasoned expert or even if you ve never drawn a floor plan before smartdraw gives you everything you need. House of wood tapered leg (29 x 3). Having 1 bedroom + attach, 1 master bedroom+ attach, 1 normal bedroom, modern / traditional kitchen, living room. House sketch plan new related simple house sketch pencil sketches.

Roomsketcher is made for creating 2d and 3d floor plans.

Simple House Sketch Plan Build your house plan and view it in 3d furnish your project with branded products from our catalog it's meant to be simple and just right for enjoying our friends and family when it's time to enjoy. By doing them as simple sketches you can sketch them wherever you are using a notepad (or a paper napkin), indoors or out. House plan with security layout. With roomsketcher you get an interactive floor plan that you can edit online. Below is my sketch that ended up forming the basis for our main floor house plan. Welcome back to my channel randy yerro ofw simple house vlog.